The Quincy
Summary
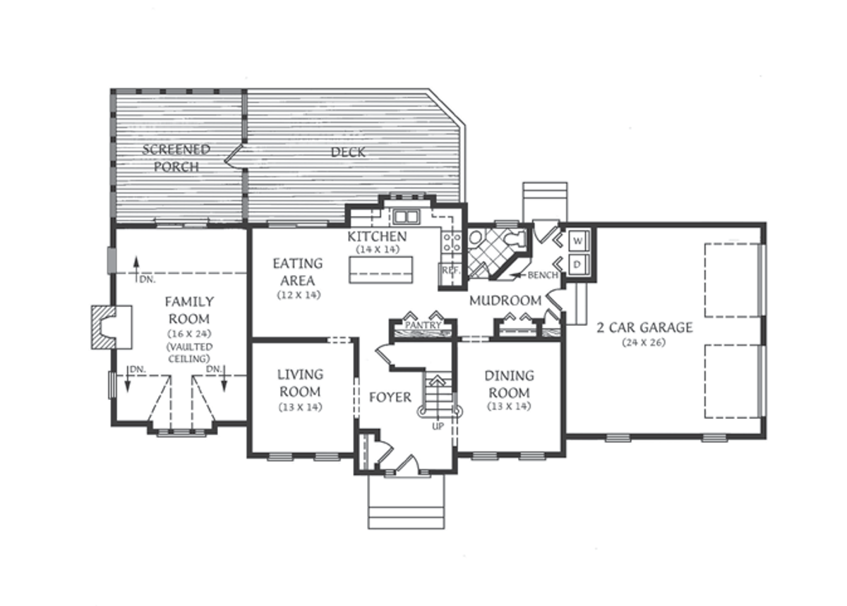
The Quincy model offers 2,713 square feet of living space in a Traditional Federal Style Colonial.
4 Bedrooms
2 1/2 Bathrooms
Vaulted Ceiling Family Room
First Floor Laundry
Screen Porch and Oversized deck (extra cost)
Mud Room off the Garage
Hardwood Flooring
Central Air and Heating
2 Car Attached Garage
pricing
The Quincy pricing starts at $718,900.
